ACCESS E-BULLETIN

AUGUST 2023

IN THIS ISSUE


  • Monthly Accessibility Online Webinar - ADA National Network and U.S. Access Board
  • ADA Accessibility Guidelines for Recreation Facilities


Monthly Accessibility Online Webinars

ADA National Network and U.S. Access Board

~ Offering 1.5 AIA HSW/CEU Credits ~

(All webinars run 90 minutes)

_____________________________________________________________________


~ UPCOMING WEBINAR ~


DESIGNING FOR CHILDREN

August 3, 2023 @ 8:30 a.m. (Hawaii Time)

Speakers: Bill Botten, Accessibility Consultant;

Josh Schorr, U.S. Access Board

_____________________________________________________


To register for the webinar, go to:

Upcoming Sessions


To view past webinars, go to:

Archive Sessions

________________________________________________________________________


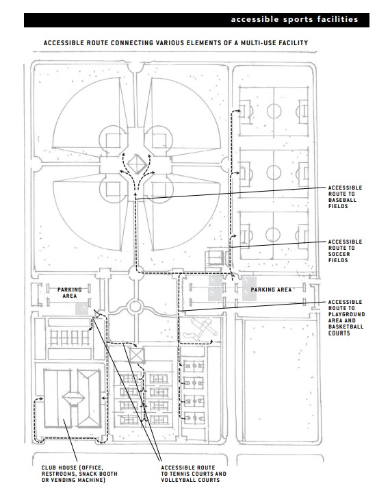
ADA ACCESSIBILITY GUIDELINES

~ RECREATION FACILITIES ~

________________________________________________________________________


The ADA Accessibility Guidelines (ADAAG) is the standard applied to buildings and facilities. Recreational facilities, including sports facilities, are among the facilities required to comply with the ADA.


The U.S. Access Board issued accessibility guidelines for newly constructed and altered recreation facilities in 2002. The recreation facility guidelines are a supplement to ADAAG. As a supplement, they must be used in conjunction with ADAAG. References to ADAAG are mentioned throughout this summary.


U.S. Access Board Accessibility Guidelines for Recreation Facilities: Website: https://www.access-board.gov/files/ada/guides/sports.pdf


If you have any questions, please feel free to contact Duane Buote, Facility Access Coordinator at duane.buote@doh.hawaii.gov.





Disability and Communication Access Board

1010 Richards Street, Room 118

Honolulu, HI 96813

(808) 586-8121

http://health.hawaii.gov/dcab