Los Alamos Co. Construction News for the

week of July 31, 2023


Public Works Projects: 


Los Alamos County Public Works' staff manages the projects listed in this section through contractors. For more information, please email  lacpw@lacnm.us, call (505)662-8150, or visit the Public Works' Project webpage at lacnm.com/PW-Projects. Please slow down and use caution within the construction work zones. Please note the below information is based on a schedule provided by the contractors and may change due to weather or other delays. Public Works officials thank the community in advance for their cooperation and patience.



Barranca Road Mill & Overlay Construction

 

Public Works has contracted with Albuquerque Asphalt, Inc. to preserve pavement on San Ildefonso Road on North Mesa and San Ildefonso Road/Barranca Road on Barranca Mesa. The project includes removal of one inch of existing asphalt surface and installation of the new asphalt surface. 

 

Paving will continue through August 2 on the Barranca Mesa portion of San Ildefonso Road. Albuquerque Asphalt, Inc. has a Noise Ordinance Waiver Permit for this project allowing crews to work from 6:30 a.m. to 5:30 p.m., Monday through Saturday.

 

The contractor will ensure as much as possible ingress and egress to residents' homes. In addition, services such as mail delivery, trash and recycling collection, school bus, and emergency services will always be maintained. Residents can expect large equipment and construction noise. Motorists and pedestrians are advised to use caution around construction activities and avoid entering the work zone. The road will be open to traffic with a work zone flagging operation, including the use of a pilot car.


 Canyon Road Reconstruction

 

TLC Plumbing and Utility will be completing warranty work on the Canyon Road Project this week on August 2-3. The warranty work will remove and replace a section of poor roadway material. 


Canyon will be partially closed in the construction zone with vehicle and bike traffic being detoured to Trinity Drive. This temporary construction zone will be placed on the eastbound lane between the Canyon Village Apartments driveway and the Immaculate Heart of Mary Catholic Church driveway. Westbound traffic will remain open during construction, and the eastbound road will be closed during daytime hours only.  


Atomic City bus stops going eastbound on Canyon will be temporarily closed based on construction. The stop will be marked with cones when unavailable.  


Construction hours are Monday through Thursday 7 a.m. to 5 p.m. Motorists and pedestrians are asked to use caution around construction activities and please Share the Road. 

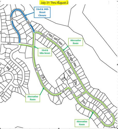
33rd / 34th Street Road and Utility Improvements

 

TLC Plumbing and Utility will continue working on the roadway portion of the project, including sidewalk and drive pad installation. The closure will start at the intersection of 34th St. and Villa and proceed to the intersection of 33rd/34th Streets and end at the intersection of 33rd/Walnut St.  

 

Beginning August 3, the contractor will complete the final asphalt placement for the project, this will impact residents that live in the area of the intersection of 33rd and 34th Streets. A 500-foot segment of Walnut will also be closed east of its intersection with 33rd Street. (See map).


**Residents must park in their driveways during the asphalt placement.**


Flaggers will direct traffic around the work zone. The intersection will reopen during non-working hours. The work is expected to take approximately two days to complete. Construction hours are Monday-Friday, 7 a.m. to 6 p.m. 


Services such as mail delivery, trash and recycling collection, and emergency services will be maintained. Please contact the Public Works Department should you have special access needs. The transit bus stop on 33rd will be closed throughout the duration of the project. Riders can use the transit stop on 35th St. 



DP Road Construction Activity Through July 31

 

Contractors for Qualcon Builders (Canyon Walk Apartments) will be trenching for a new electrical line off the north side of DP Road in the vicinity of the Knights of Columbus. During these construction activities, one lane of DP Road around the Knights of Columbus may be closed for short periods. The contractor will have traffic control (flaggers) on site to direct traffic safely through the work area during these times. Drivers, pedestrians, and bicyclists are asked to use caution and follow the direction of the flaggers during this work.




Traffic & Streets Projects: 


Los Alamos County Traffic & Streets Division staff manages the projects listed in this section. Please slow down and use caution within the construction work zones. Call Daniel Blea, Traffic and Streets Manager, for concerns 505-663-8206.



Asphalt Patching Continues in White Rock on La Vista and Sierra Vista Drives 

 

Crews will continue asphalt patching in White Rock on La Vista and Sierra Vista drives. Work hours are 8 a.m. to 3:30 p.m. daily.


Countywide Right of Way Mowing Begins 

 

Crews will be mowing alongside the roadway and on County trails countywide. Please watch for crews, equipment, and debris. Work hours are 8 a.m. to 3:30 p.m. daily. 


Parking Lot Grading begins Monday, July 31 on North Mesa

 

Crews will be grading parking lots on North Mesa at Flint Field, the dog park off North Mesa Park Road, the ball fields, and the lot across from the Sheriff’s Posse. Millings were laid last week, this week they will be grading the millings. Work hours are 8 a.m. to 3:30 p.m. daily. 


School Zone Striping Continues in Los Alamos and White Rock

 

Crews continue curb and crosswalk painting in all school zones and safe routes across Los Alamos County. Work will continue until completed. Watch for the striping machine and fresh paint. Work hours are 5 a.m. to 1:30 p.m. daily. For information regarding this project, contact Anthony Lucero at 505-795-3671.


Crack and Fog Sealing Operations Continue in White Rock 

 

GM Emulsion, LLC, will continue crack and fog sealing in White Rock along Grand Canyon Drive. The roads scheduled to be sealed include Sierra Vista Drive, La Vista Drive, Yosemite Drive, Mesa Verde Street, La Paloma Drive, Valle Vista Street, Canyon Vista Street, Monte Vista Street, Barcelona Ave., Cañada Way, Cañada Circle, Balboa Drive, and Alhambra Drive.

 

Construction hours begin at 8 a.m. daily. Work is anticipated to continue through August 11. A flagging operation will be in place. Please watch for traffic signs, crews, and machinery in these locations. For questions or concerns, please contact Daniel Campos, Streets Superintendent, at 505-500-7321.


Canyon Road Trail Closure Begins Tuesday, August 1 

 

Canyon Road Trail will be closed at both ends of the bridge across from the Aquatic Center.  Due to weather conditions, this work was postponed until August 1. The project includes replacing a section of concrete. Work hours are 9 a.m. to 3:30 p.m. The project is anticipated to be complete by August 2 in the afternoon. Through pedestrian traffic will not be allowed on the bridge. For information about this project, contact Aaron Park, 505-709-0949 or Daniel Campos, 505-500-7321.



Utilities Projects: 

Los Alamos County Dept. of Public Utilities (DPU) staff manages the projects listed in this section. Please slow down and use caution within the construction work zones. Contact the Customer Care Center (505) 662-8333, CustomerCare@lacnm.us, or visit ladpu.com/Projects.  




Trenching for Electric Continues on Barranca Mesa


DPU is replacing primary underground electric lines and conduit at the eastern end of Barranca Mesa. The project has been extended to continue through next week. 



DPU’s contractor, Paul Parker Construction Company, is excavating between 410 and 500 Navajo Road and south on Totavi Street. Excavation continues across the intersection of Totavi and Navajo and then through to the end of the Totavi cul-de-sac. Residents in the area should expect sidewalk closures and exercise caution while driving through the work zone. All trenching is on one side of the street. 




Non-County Projects: 


The following construction projects are not funded by Los Alamos County. Updates are included to keep residents informed of potential traffic impacts. Questions should be directed to the parties identified within each description. Please obey all traffic devices and slow down in work zones.  



Lane and Sidewalk Closure with Moving Flagging Operation Continues on Central Ave. near 7th St. 

 

Son's Communications, under contract with Comcast, will close the eastbound lane and south sidewalk on Central Ave. from 15th St. to 7th St. A moving flagging operation will be in place from 8 a.m. to 3 p.m. daily. Pedestrian detour signs will be posted at 15th and Central and 6th St. and Central. For questions regarding this project, please contact Anita Morales, Son's Communications, LLC., at 505-410-2384. This project is anticipated to continue through next week.


NNSA – Update as of July 28, 2023: Construction Continuing on Phase 2 on Project to Make Improvements To NM 4/East Jemez Road Intersection


NM Department of Transportation oversees and manages the construction project on NM 4/East Jemez Road. 

 

Crews are also working in both the southeast and southwest quadrants of the intersection on grading and installation of drainage pipeline. Construction on Phase 2 is expected to last through about late August, followed by Phases 3 and 4.  The project is expected to be completed in late 2023.

 

To help reduce congestion, commuters are encouraged to carpool, vanpool, or take one of the many bus options. Atomic City Transit is available for Los Alamos locals, and multiple buses and park-and-ride shuttles currently serve the Laboratory, including the new Pojoaque Express that transports workers directly to TA-35 and TA-55 from the Cities of Gold Casino parking lot. 

 

LANL employees can visit the Traffic News Hub for the latest information about traffic impediments on-site and en route to the Lab. Find shuttles, the LANL Taxi, vanpools, and more transit information on the LANL Transportation Hub. Community members can visit www.lacnm.com/driveless

 

During Phase 2, the following traffic impacts will be in place:


-       The southbound right lane of NM 4 is closed. Traffic is shifted to the east, with one lane of traffic open in each direction (north and south) to the intersection of NM 4 and E. Jemez Road.


-       Traffic on E. Jemez is shifted to the south, with one lane of traffic open in each direction (east and west).


-       Access to the parking area for the Bandelier National Monument Tsankawi Unit remains closed, with no alternative access provided.


-       The speed limit throughout the construction area is reduced to 35 miles per hour. PLEASE SLOW DOWN AND OBEY THE SPEED LIMIT.


-       MOTORISTS SHOULD EXPECT DELAYS AND ALLOW EXTRA TIME TO REACH THEIR DESTINATIONS IN THE MORNING AND EVENING.


During construction, all existing travel lanes on NM 4 and E. Jemez Road will remain open during peak travel times – 6:30-8:30 a.m. and 4-6 p.m. Monday-Friday. Any lane closures will occur during non-peak hours and flaggers will direct traffic. All construction is weather permitting and is subject to change without notice.

 

Motorists are encouraged to slow down and give themselves additional time to reach their destination. More construction phases will follow, with the project expected to be completed in late 2023. 

Subscribe to receive the Cone Zone directly in your inbox each Friday!

Check out the road conditions before you get there! www.lacnm.com/roads.


Find tips and information about how you can improve your commute

or find alternative transportation methods in and around the Los Alamos area:

Visit www.lacnm.com/driveless or LANL’s “Life at the Lab” transportation page!