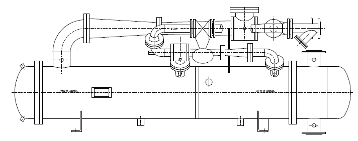
Inter/After Condenser Design
The inter and after condensers can be designed and laid out in different ways. The most common configuration we supply today is a design referred to as an “inline” inter/after condenser. This configuration combines the inter/after condenser into one shell with a vertical division plate between the inter/after condensers, as shown in the picture below. Another inter/after condenser design is referred to as a “side by side” inter/after condenser. While this older design also has the inter and after condensers sharing the same shell, the division plate does not run vertical in the condenser but is instead run horizontally the length of the shell. These older side by side designs are effective but tend to eventually wear over time at the longitudinal division plate due to corrosion. The inter and after condensers can also be supplied as separate condensers with separate shells and sized for 100% capacity or 200% capacity. They can also be supplied as two separate sets of inter and after condensers, which is the equivalent of installing parallel single element systems.