The 2nd level and main entrance level for the building is structurally finished as concrete was poured today (April 1st) and the post tension cables will be stressed by the end of the week. This means our first livable units are now set and the actual views can be seen firsthand, and they are spectacular! Level 3 is already half formed and concrete will be starting for that level in just 2 weeks. The Walker and Divcon teams are doing an exceptional job and are utilizing our great spring weather to stay ahead of schedule.

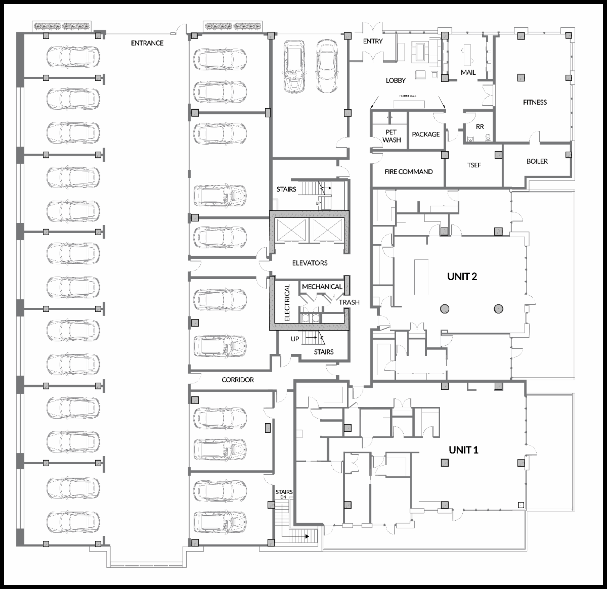
The Spokane Falls Tower provides a unique and secured parking garage that features private individual garages. Each garage is equipped with a private garage door and access keypad. The main garage doors into the parking structures are equipped with Rytec high-speed doors, ensuring fast, secure, and seamless access for the residence. The garages are well lit and the access driveways off of Lincoln Street are snow melted which eliminates the issue of snow or ice buildup.

 

When you own a luxury condo at The Spokane Falls Tower, you have access to purchasing a wide range of different private garages. The sizes range from 280 square foot single car garage to a 485 square foot standard two car garage to over 1,000 square foot jumbo size garage.

 

You will also have options to personalize the garages with storage solutions that may include custom work benches, storage racks and storage tub solutions, bicycle storage, and much more.  

There are three types of garages available: single-car, standard two-car, and extended two-car garages. The extended garages offer additional space that can accommodate extra storage, workbenches, or even a motorcycle.

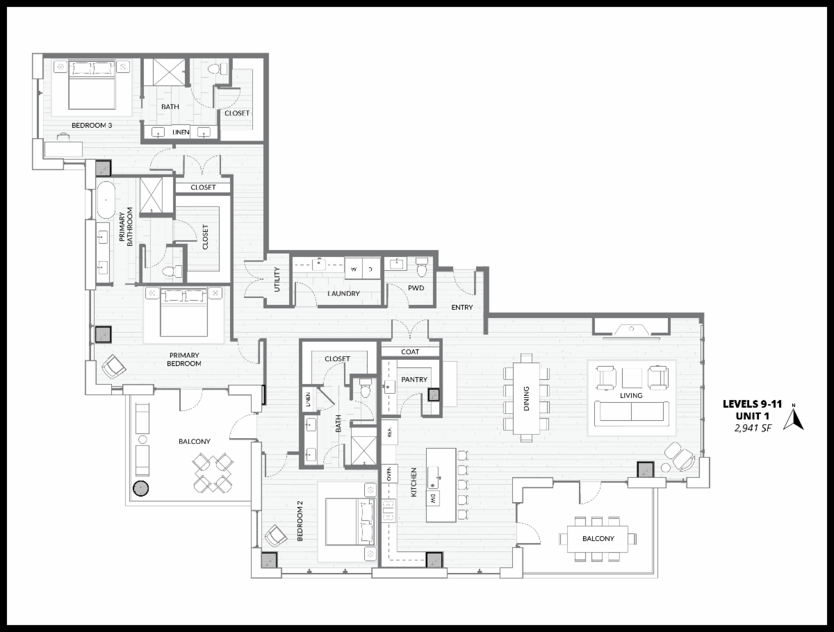
We are thrilled to unveil the floor plans for the Spokane Falls Tower! This 12-story tower will feature 48 meticulously designed homes, offering a diverse selection of living spaces. The building will include 6 studios, 12 one-bedroom units, 23 two-bedroom units, and 6 three-bedroom units, catering to a variety of lifestyles. With homes ranging from 488 square feet to an expansive 3,013 square feet, there’s a perfect space for everyone to call home.

  • Interested in a unit larger than 3,000 SF? We’re happy to discuss details and help address your needs. Call Nick Czapla @ 509.343.9003

Check Out the live view from the 

Spokane Falls Tower

Thank you for your continued interest in the Spokane Falls Tower. We are excited to share updates on key milestones. Stay tuned as we bring this exceptional residential vision to life, complete with breathtaking forever views of the Spokane Falls.

For More Information Visit

www.SpokaneFallsTower.com

Facebook  Instagram

All artist’s renderings are for representational purposes only and subject to variances. Finishes depicted in artist’s rendering are not necessarily indicative of what will be specified in the offering plan and not all items depicted in artist’s rendering are included in unit purchase. The artist representations and interior decorations, finishes, appliances and furnishings are provided for illustrative purposes only. Floorplans and dimensions are for reference only. Layout of room sizes, and finishes shall be as constructed. Accuracy of information including measurements is not guaranteed.


All advertising, promotional materials, site plans and pricing information associated with the project and the units described herein (including, without limitation, to materials, finish selections and specifications), if any, are preliminary in nature and are subject to change by developer without notice.


Equal Housing Opportunity. The Falls fully supports the principles of the Fair Housing Act and the Equal Opportunity Act.